Kauno architektūros ir urbanistikos ekspertų tarybos posėdžio dėl gamybinių pastatų rekonstrukcijos į (daugiabučius) gyvenamuosius pastatus su komercinėmis patalpomis Gedimino g. 46, Kaune, projektinių pasiūlymų protokolas 3
Kauno architektūros ir urbanistikos ekspertų tarybos posėdžio dėl gamybinių pastatų rekonstrukcijos į (daugiabučius) gyvenamuosius pastatus su komercinėmis patalpomis Gedimino g. 46, Kaune, projektiniai pasiūlymai.
Statinių architektas – Mindaugas Miliukštis. Statytojas – UAB Gedimino 46.
ĮVYKUSIO 2014-10-01 KAUNO ARCHITEKTŲ NAMUOSE,
PROTOKOLAS NR.115
POSĖDŽIO DALYVIAI:
Projekto autorius – Mindaugas Miliukštis
KAUET nariai: Gintaras Balčytis, Jurgis Bučas, Saulius Juškys, Algimantas Kančas, Vaidotas Kuliešius, Jonas Minkevičius, Gintaras Prikockis Aurimas Ramanauskas, Nerijus Stanionis, Alvydas Steponavičius, KAUET direktorė – Jūratė Merkevičienė.
Kiti dalyviai:
Kauno miesto Tarybos narė Ona Balžekienė, užsakovas Donatas Miškinis, architektai: Rimgaudas Miliukštis, Vainius Šalomskas.
Spaudos atstovai: Jurgita Šakienė („Kauno diena“).
Posėdžio pirmininkas: Gintaras Balčytis.
Posėdžio sekretorė: Jūratė Merkevičienė.
GAMYBINIŲ PASTATŲ REKONSTRUKCIJOS Į (DAUGIABUČIUS) GYVENAMUOSIUS PASTATUS SU KOMERCINĖMIS PATALPOMIS GEDIMINO G. 46, KAUNE, PROJEKTINIAI PASIŪLYMAI.
Statinių architektas – Mindaugas Miliukštis. Statytojas – UAB Gedimino 46.
G. Balčytis: projektuojamo pastato vieta žinoma visiems. Ar ekspertai mano, kad pateikta medžiaga yra pakankama svarstymui? Jei taip, prašau autorių pradėti pristatymą.
M. Miliukštis: norėčiau pradėti nuo istorinių tyrimų.
Mūriniame, 2-jų aukštų name prie Gedimino gatvės Nr. 46 nuo pastatymo pradžios (1856) buvo įrengti butai, vėliau tabako fabrikas. Nuo 1928 m. valdą ir pastatus įsigijo ,,Varpo“ bendrovė, leidusi įvairius leidinius, laikraščius: ,,Lietuvos žinios“, ,,Lietuvos ūkininkas“ ir kt. Po rekonstrukcijos objekte įsikūrė redakcijos ir spaustuvė, kiemo statiniuose buvo gyvenami butai. Dabar buvusios ,,Varpo“ spaustuvės pastatas bei sklypas stovi apleisti.
1928–1931 m. performuojamas sklypas, papildomai suformuojant sklypus prie K. Donelaičio g.
1938 m. statinys rekonstruotas, dalyje užstatant trečią aukštą, partvarkant gatvės fasadą.
1939 m. pertvarkyta vidaus plano struktūra.
1940–1990 m. keletą kartų vykdytas patalpų perplanavimas.
1996 –2002 m. sklype nugriauti prie šiaurinės sklypo ribos buvę du pastatai.
1997 m. liepos 29 d. Kauno miesto valdyba patvirtino detalųjį planą – sklypo formavimo projektą. Suprojektuotas sklypas pagal buvusias istorines sklypo ribas.
1994 m. atlikta paminklosauginė ekspertizė. Spaustuvės pastatas pripažintas vertingu.
1996 m. atlikti architektūriniai tyrimai, pastatui skirti 3 iš 6 galimų balų.
1999 m. atlikta ekspertizė dėl paskirties keitimo, pastato aukštinimo, sklypo papildomo užstatymo. Nuspręsta, kad paskirtis gali būti keičiama, taip padidinant gatvės reikšmę. Pastato iš Gedimino g. neleista aukštinti. Sklype galima statyti naujus statinius.
1999 m. parengtos paminklotvarkos sąlygos: nekeisti gabaritų iš gatvės pusės, paruošti galimus įėjimo iš gatvės pusės variantus, restauruoti pagrindinio fasado tinką, restauruoti vidinio kiemo vienaaukštės dalies elementus, išsaugoti medžius.
2002 m. buvo atlikta konstrukcijų būklės techninė ekspertizė. Ekspertizę atliko UAB „Įraža“. Pastato 1G2p (neeksplotuojamas nuo 1995 m.) būklė prasta, netenkina esminių mechaninio pastovumo ir patvarumo reikalavimų. Pastatai pietrytinėje pusėje avarinės būklės.
2002 m. Gedimino g. 46 ir 44 pagrindu buvo planuojama statyti Kino teatrą.
2002 m. buvo išduotos paminklotvarkos sąlygos ir formavimo galimybių įvertinimas.
Urbanistinio lygmens sąlygos: nauji pastatai iki 18 m (iki karnizo).
Architektūrinio lygmens sąlygos: išsaugoti gatvės fasadą.
Statinių aukštis sklype nustatytas 2002 m. pagal M. Landmann metodiką. Išvada: projektuojant naujus pastatus faktiškas pastatų aukštis turėtų būti 14–18 m. Sklypas yra ant Įgulos bažnyčios aplinkos formavimo I zonos ribos.
ESAMA SITUACIJA
2014 m. atlikti konstrukciniai tyrimai. Tyrimai patvirtino 2002 m atliktų tyrimų duomenis. Pastatas 1G2p prastos būklės, pastebėtos deformacijos, trūkiai. Kiti pastatai sklype avarinės būklės.
2014 m. atlikti istoriniai tyrimai. Tyrimus atliko R. Rickevičienė.
2014 m. gautas statybas leidžiantis dokumentas pastato remontui ir avarinės grėsmės šalinimui. Projekto tikslai: pašalinti avarijos grėsmę, stabilizuoti pastatą, išvalyti pastatą nuo šiukšlių ir įgriuvusių statybių konstrukcijų. Projekto vadovas – M. Miliukštis.
2014 m. atliktas projektinių pasiūlymų vertinimas paveldosaugos ir paveldotvarkos požiūriu. Projektinių pasiūlymų autorius – M. Miliukštis, tyrimus atliko ekspertė R. Rickevičienė.
PROJEKTUOJAMI PASTATAI
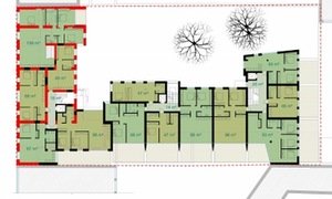
Rekonstruojami trys pastatai. Buvę spaustuvės pastatai pritaikomi gyvenamųjų (daugiabučių) pastatų paskirčiai, pastato prie Gedimino g. pirmame aukšte numatant komercinę veiklą (prabangios parduotuvės, salonai, parduotuvės).
Pastatas 1G2p. Remontuojamas fasadas iš gatvės pusės, papildomai įrengiant įėjimus į komercines patalpas. Išsaugoma didesnioji dalis pastato konstrukcijų. Pietrytinėje dalyje pastatas perstatomas. Griaunamos kelis kartus perstatytos išorinės konstrukcijos. Pastato tūris iki karnizo išlaikomas. Pastato stogo kraigo aukštis išlaikomas esamas, stogo konstrukcijas pakeliant iki parapeto viršaus. Kiemo dalyje pastato stogas įrengiamas plokščias.
Pastatas 4G1p rekonstruojamas, išlaikant pietinėje pusėje esančią sieną. Pirmame aukšte įrengiama automobilių stovėjimo aikštelė. Antrame aukšte esamo pastato vietoje įrengiamas plokščias eksplotuojamas stogas, naudojamas trims butams. 3–4 aukšte įrengiami butai.
Sklype formuojama keletas automobilių stovėjimo aikštelių: 5, 10 ir 5 vietų. Nuo aikštelių iki gretimų pastatų išlaikomas didesnis nei 10 m atstumas. Sklype formuojama žalia zona su vaikų žaidimų aikštele. Tarp automobilių aikštelės ir žaidimų zonos išlaikomas 10 m atstumas. Sklype auga trys medžiai. Medžiai saugomi, statybas vykdant > 6 m atstumu. Sklype įrengiamas hidrantas gaisrų gesinimui.
Į visus pastatų aukštus patenkama liftais arba atskiromis laiptinėmis. Planuojami butai 40–158 m2.
Pastato fasadų apdailai naudojamas dviejų spalvų tinka: tamsiai pilkas ir šviesiai pilkas arba apdailinės plokštės, dengtos granitiniu tinku. Fasadas iš Gedimino g. tinkuojamas dviejų spalvų granitiniu tinku (šviesiai pilku ir tamsiai pilku). Pastato stogas iš Gedimino g. tamsiai pilkos skardos (classic tipo). Stoge įrengiami su stogo plokštuma sutapdinti stoglangiai. Langai – tamsiai pilki. Pastato 1G2p langai mediniai, gaminami pagal esamus langus arba pagal ikonografinius duomenis.
Pastatų maksimalus aukštis 18 m. Paauštinta pastato dalis dengia ant stogo sumontuotus įrenginius (kaminėlius, trapus, kondicionierių išorinius blokus ir kitus inžinerinius įrenginius).
Gediminio g. ir K. Donelaičio g. išklotinės yra Kauno naujamiesčio vertingosios savybės. Rekonstruojami pastatai (4G1p ir 5G1p) yra nutolę nuo gatvių fasadų 31–42 metrus (daugiau kaip dvigubai nei projektuojamų pastatų aukštis), todėl neigiamos įtakos išklotinėms neturi. Pastatai iš K. Donelaičio g. matosi tik pro tarpus tarp pastatų arba iš aukštesnių apžvalgos taškų (laiptų ar užkilus Žemaičių g.). Rekonstruojami pastatai sklypo viduje iš Gedimino g. nesimato, todėl įtakos gatvės fasadų išklotinei neturi.
KLAUSIMAI
V. Kuliešius: patikslinkite, prašau, sanitarinius atstumus iki parkavimo ir vaikų žaidimo aikštelių.
M. Miliukštis: iki parkavimo aikštelių išlaikomas 11 m atstumas. Žaliasis plotas pagal STR turi užimti ne mažiau 13 % sklypo. Vaikų žaidimo aikštelė nuo parkavimo nutolusi 10 m.
G. Balčytis: kolega Vaidas norėjo pasakyti, kad parkavimo aikštelė ir nuo projektuojamo pastato turi būti minimaliai nutolusi per 10 m.
J. Bučas: koks dabar yra rekonstruojamo pastato teisinis statusas?
M. Miliukštis: saugoma tik išklotinė, pats pastatas nėra įtrauktas į valstybės saugomų pastatų registrą. Pastatas turi vertingųjų savybių. Vertingasis laikotarpis – tarpukaris. Šiuo metu rengiamas Kauno naujamiesčio reglamentas.
G. Balčytis: kaip supratau, DP nėra?
M. Miliukštis: 1997 m. parengtas sklypo formavimo projektas, kuris miesto tarybos sprendimu gali atstoti DP. Atskiro DP nebus.
G. Balčytis: kokiame dokumente nurodyta, kad turi būti saugoma išklotinė?
M. Miliukštis: Kauno naujamiesčio dosje.
G. Prikockis: yra galiojantis vertingųjų savybių aktas.
N. Stanionis: kokia KVAD nuomonė apie projektą?
M. Miliukštis: nusprendžiau pirmiausia projektą pristatyti KAUET‘ui.
G. Balčytis: pagal galiojantį naujamiesčio reglamentą šioje vietoje reikia ne tik išlaikyti išklotinę, bet ir projektuoti šioje vietoje neleidžiama.
D. Miškinis: norėčiau patikslinti, kad su projekto autoriumi ieškojom balanso tarp architektūros paveldo ir komercinės veiklos.
A. Steponavičius: ar jums kaip užsakovui tinkamas butų planavimo lygis – maži butai ir maži atstumai manevravimui, įvažiuojant į parkingą?
D. Miškinis: diskusijos su architektu vyko pusę metų, išbandėm visas galimybes: ir parkavimą po pastatu, didelius ir mažus butus.
G. Balčytis: ar buvo nustatytas maksimalus aukštingumas?
M. Miliukštis: pagal 2002 m. išduotas urbanistinio lygmens sąlygas – 18 m.
PASISAKYMAI
G. Balčytis: pritardamas projekto koncepcijai, rekomenduoju autoriui atkreipti dėmesį, kad atviras automobilių parkavimas gali būti ne arčiau 10 m nuo pastatų. Todėl siūlyčiau uždengti kiemą su parkavimo aikštelėmis, o ant perdangos įrengti žalią kiemo erdvę. Taip pat siūlyčiau ieškoti originalesnės pastato išraiškos. Siūloma architektūra yra foninė, kas irgi nėra blogai. Reikėtų apjungti pietinio ir šiaurinio fasadų estetiką, nes ji labai skirtinga. Pietinio fasado estetika labai svetima naujamiesčiui. O šiaurinis fasadas yra labai svarbus ir turėtų būti labiau išskirtinės architektūros.
Žinoma, pritariu, kad miesto centras taptų tankiau apgyvendintu, išnyktų apleisti kiemai.
J. Bučas: pristatytas darbas atrodo pozityviai. Kokybinį išnaudojimą sprendžia užsakovas. Medžiaga pristatyta nuosekliai, tema plačiai išnagrinėta. Analitinė ir techninė pasiūlymų dalis išspręsta neblogai. Tai apgalvoti pasiūlymai, gal nėra tik galutinių išvadų. Man nėra iki galo aišku, kaip objektas įtakos vaizdus ir išklotines. Statinio rekonstrukcijos siūlymams pritariu.
S. Juškys: pateiktą sprendimą vertinu teigiamai, ypač kvartalo sklypų intensyvinimo aspektu.
Rekonstruojamo pastato 3-iojo aukšto butai projektuojami su apšvietimu per stoglangius. Tai ryškus minusas. Gal šios patalpos galėtų būti skirtos kitai funkcijai?
Dėl parkavimo atstumo neišlaikymo iki projektuojamo namo – gyvenimas vis tiek privers išnaudoti sklypą iki maksimumo. Abejonių kelia plyšys K. Donelaičio gatvėje, kur matysis naujas pastatas, tiek dėl aukštingumo, tiek dėl architektūros.
Autorius su sklypu elgiasi tvarkingai, parodytos pastangos viskam rasti savo vietą. Pasiruošta labai neblogai.
A. Kančas: į akis krenta labai skirtingi kiemo fasadai. Linkiu, kad labiau apsijungtų fasadų architektūra. Manau, kad fasaduose per daug skirtingų temų – reikėtų nuraminti ir suvesti į bendrą vardiklį.
Džiaugiuosi, kad miesto centre gyvens daugiau žmonių.
J. Kančienės rašytinė nuomonė: ,,Kaip naujasis tūris paveiks gražiąją K. Donelaičio g. 13–19 namelių išklotinę? Kokiu fonu jiems taps? Gal naujasis statinys apskritai nesimatys iš K. Donelaičio g.,, o matysis tik nuo Žemaičių g.? Ar teisingi nurodyti aukščiai pateiktoje išklotinėje (juk nameliai prie gatvės dviaukščiai, na, dar jų stogai, pusrūsiai, o naujasis penkiaaukštis)?. Gal iš K. Donelaičio ir Gedimino gatvių reikėtų pateikti bendrus abiejų užstatymo planų fasadus, o ne tik siluetą?
Apskritai tai džiugu, kad bus sutvarkytas šis kvartalo vidinis šabakštynas ir išgelbėtas „Varpas“ (bent fasadas). Akivaizdu, kad architektas namą projektuodamas ieškojo sąsajų su „Varpo“ architektūra.
Tokia kryptis galima.“
V. Kuliešius: norėčiau atkreipti dėmesį į šias problemas:
- Kieme neišspręstas automobilių parkavimas.
- Mano nuomone, užstatymo tankumas ir intensyvumas per dideli.
- Siūlomas gyvenimo komforto lygis per žemas – kiemas bus periodiškai užterštas išmetamomis automobilių dujomis.
- Statinio architektūra standartinė, reikėtų siekti aukštesnės kokybės, tuo labiau , kad šalia – Arno Funko projektuotas gyvenamasis namas.
V. Merkevičiaus rašytinė nuomonė: ,,Projektas turi tradicinę centre projektuojamų daugiabučių gyvenamųjų namų problemą – per didelis intensyvumas ir tankumas. Dėl to projektas nukenčia: vietoje galimybės sukurti jaukias apželdintas erdves, įrengti vaikų vaikų žaidimo aikšteles kiemas paverčiamas mašinų stovėjimo aikštele. Be to, neišlaikytas normatyvinis atstumas nuo projektuojamo namo iki parkavimo aikštelės. Dar siūlyčiau atkreipti dėmesį į priešgaisrinius reikalavimus – būtinas antrasis evakuacinis išėjimas (per balkoną), o projekte kai kurie butai to neturi.
Tačiau medžiaga įrodo, kad toks tūris šioje vietoje yra įmanomas. Pasisakyčiau už tolesnį šio projekto vystymą.“
J. Minkevičius: projektuojama pačiame naujamiesčio centre, susiformavusiame užstatyme. Tai sunkus uždavinys šioje chaotiškoje vidaus erdvėje. Projektas įspraustas į rėmus: paminklosauginius, insoliacinius, aukštingumo. Matosi, kad autorius įdėjo daug pastangų. Bet, iš esmės, pastato reikšmingumas kelia abejonių. Reikėtų stengtis apsiriboti mažesniu automobilių skaičiumi – tai visos civilizacijos bėda. Žinoma, gerų sąlygų vaikams užtikrinti neįmanoma.
Pritariu fasadui iš Gedimino gatvės. Iš K. Donelaičio gatvės matau didelę problemą – susidaro tarpeklis, norėtųsi, kad nauja architektūra kokybe nenusileistų aplinkiniams pastatams. Dabar pateikta architektūra grynai funkcionali. Pilkos neutralios spalvos į gyvenamųjų namų aplinką džiugesio neįneša – reikėtų spalvingesnių fasadų.
Visumoje sprendimas teigiamas.
G. Prikockis: puikiai paruošta medžiaga, racionalus, konkretus ir aiškus pristatymas.
Projektiniai pasiūlymai parengti gerai. Tūris ir aukštingumas tinkami. Saugomo fasado transformavimas į atviresnį, nei buvo irgi tinkamas. Projektiniams pasiūlymams pritariu.
Pastabos autoriui: labai skirtinga fasadų stilistika. Su fasadais reikėtų dar padirbėti.
Pastabos statytojui: per mažas komfortas kieme, pastate galėtų atsirasti bendro naudojimo erdvių.
A. Ramanauskas: projektui, iš esmės, pritariu, iniciatyva grąžinti gyventojus į miesto centrą sveikintina. Pastabos–pasiūlymai:
- Bendrus vidaus kvartalo tūrius norėtųsi matyti šiek tiek smulkesnius – santykyje su gretimais pastatais ir kiemo vidaus erdve. Pats kiemo tūris galėtų būti 1 m siauresnis.
- 2. Vidaus kiemas paverstas parkingu – norėtųsi humaniškesnio patekimo į namą sprendimo.
- 3. Kiek trūksta jėgų pačiai architektūrai. Galbūt, seno ir naujo jungtis galėtų būti kitokia. Pateikta estetika tipinė, pačiam miesto centre esančiam statiniui trūksta originalumo.
N. Stanionis: norėčiau autorių pagirti už pateikimą. Pritariu pastato projektiniams pasiūlymams. Medžiaga pateikta nuosekliai, įdėmiai. Sklypas išnaudotas maksimaliai: pastato tūris, aukštis tinkami. Insoliacija, išplanavimas pritaikyti teisės aktams.
Linkiu tobulinti fasadų sprendinius, siekti kokybiškesnės architektūros.
A. Steponavičius: pavyzdinis pristatymas. Labai džiaugiuosi, kad centre vyksta gyvi procesai. Butų komforto lygis nėra aukštas, bet užsakovui tinka. Dalis pietinio fasado galėtų būti apželdinta.
Pritariu ir džiaugiuosi.
G. Balčytis: visi pasisakė už projekto vystymą toliau. Buvo abejonių dėl architektūros, parkavimo – visa tai rasite nutarime.
D. Miškinis: mūsų tikslas – grąžinti žmones į miestą, nes dabar miesto centre arba nepatogu, arba brangu. Norime, kad būtų funkcionalu ir estetiška. Bandėme ir labiau intensyvų užstatymą, bet tai sudėtinga dėl žalumos. Šiame projekte esamus medžius palikom. Mes už tai, kad centre gyvenantys žmonės mašinų turėtų mažiau. Numatėm patalpas laikyti dviračiams. Jei perdengsim aikštelę, reikės šalia esančio namo gyventojų sutikimo.
A. Kančas: gal perdengti bent dalį kiemo?
D. Miškinis: stoginės padėties neišgelbės.
J. Bučas: kokia kiemo danga?
M. Miliukštis: asfaltas važiuojamoje dalyje.
G. Prikockis: labai puiku, kad yra patalpa dviračiams. Suomijoje mačiau daugiabutyje bendrą patalpą vaikams prižiūrėti. Bendros patalpos padarytų jūsų namą išskirtiniu Kauno kontekste.
D. Miškinis: tokias bendras patalpas mačiau Ispanijoje.
NUTARIMAS
1. Pristatytam projektui GAMYBINIŲ PASTATŲ REKONSTRUKCIJOS Į (DAUGIABUČIUS) GYVENAMUOSIUS PASTATUS SU KOMERCINĖMIS PATALPOMIS GEDIMINO G. 46, KAUNE, PROJEKTINIAI PASIŪLYMAI (Statinių architektas – Mindaugas Miliukštis. Statytojas – UAB Gedimino 46.) pritarti. Rekomenduoti tolimesniame darbe atsižvelgti į pareikštas pastabas:
1.1 Statinio architektūra standartinė, reikėtų siekti aukštesnės kokybės, nes pastatas pačiame naujamiesčio centre, šalia tarpukario architektūros pastatų ( 7 ekspertai).
1.2 Primename, kad atviras automobilių parkavimas gali būti ne arčiau 10 m nuo pastatų (taip pat ir nuo projektuojamo pastato).(4 ekspertai).
1.3 Vidaus kiemas paverstas parkingu – norėtųsi humaniškesnio patekimo į namą sprendimo. Viduje galėtų atsirasti bendro naudojimo erdvių (3 ekspertai).
1.4 Abejonių kelia K. Donelaičio gatvės išklotinė, kur matysis naujas pastatas, tiek dėl aukštingumo, tiek dėl architektūros.(3 ekspertai).
1.5 Reikėtų apjungti pietinio ir šiaurinio fasadų estetiką, nes ji labai skirtinga (2 ekspertai).
1.6 Siūlyčiau uždengti kiemą su parkavimo aikštelėmis, o ant perdangos įrengti žalią kiemo erdvę (G. Balčytis).
1.7 Fasaduose per daug skirtingų temų – estetikai reikėtų rasti bendrą vardiklį.(A. Kančas).
1.8 Siūlyčiau atkreipti dėmesį į priešgaisrinius reikalavimus – būtinas antrasis evakuacinis išėjimas (per balkoną), o projekte kai kurie butai to neturi (V. Merkevičius).
1.9 Bendrus vidaus kvartalo tūrius norėtųsi matyti šiek tiek smulkesnius – santykyje su gretimais pastatais ir kiemo vidaus erdve (A. Ramanauskas).
Gintaras Balčytis
Jūratė Merkevičienė








